พบเครื่องยนต์ใหม่ของ Kawasaki Ninja 1000 2020 ในเอกสารอย่างเป็นทางการเกี่ยวกับมาตรฐานมลพิษ

มันยังไงกันแน่ เมื่อพบเอกสารเกี่ยวกับมาตรฐานมลพิษของ Kawasaki Ninja 1000 ในเอกสารของ CARB หรือ California Air Resources Board ซึ่งเป็นองค์กรเกี่ยวกับการควบคุมมาตรฐานมลพิษของสหรัฐอเมริกา ซึ่งก่อนหน้านี้มีข่าวออกมาว่า Kawasaki เตรียมเปิดตัวรถจักรยานยนต์รุ่นใหม่ ถึง 5 รุ่น ภายในปีนี้ ที่งาน Tokyo Motor Show และงาน EICMA Show
ตามกฎมาตรฐานมลพิษใหม่ของฝั่งยุโรปอย่าง Euro 5 ที่บังคับให้ผู้ผลิตรถจักรยานยนต์ นำรถของตัวเองเข้าทดสอบกระบวนการเผาไหม้และกระบวนการไอเสียเพื่อให้เป็นไปตามมาตรฐาน เมื่อ Kawasaki Ninja 1000 ตอนแรกมีแววว่าจะหายไปแต่ตอนนี้ได้กลับมาอีกครั้ง ในปี 2020 ซี่งผ่านการอนุมัติเรียบร้อยแล้ว

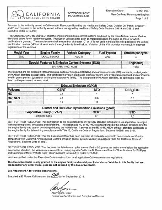
รายละเอียดด้านเครื่องยนต์ในเอกสารยังคงเป็นเครื่องยนต์ขนาด 1,043 ซีซี แต่ในเรื่องตัวเลขรหัสเครื่องยนต์ปัจจุบันใช้ 1.04AAG ซึ่งเป็นรุ่นที่ใช้มานานหลายปี แต่ในเอกสารใหม่นี้พบว่าเครื่องยนต์ใช้เป็น 1.04AAJ และไม่เพียงแค่นั้นเครื่องยนต์ใหม่นี้ดูเหมือนว่าจะปล่อยมลพิษน้อยลงอย่างมีนัยสำคัญ
ในส่วนของการปล่อยไอเสียเอกสารระบุว่า Ninja 1000 2020 คันนี้ ปล่อยไฮโดรคาร์บอร 0.1g/km, 0.1g/km สำหรับ ไฮโดรคาร์บอน + ออกไซด์ของไนโครเจน และ 0.2g/km. ของคาร์บอนมอนอกไซด์ เมื่อเปรียบเทียบกับเครื่องยนต์ในอดีตปล่อยไอเสียในอัตรา 0.14, 0.2 และ 1 ตามลำดับ นั่นแสดงว่า Ninja 1000 คันนี้สามารถลดการผลิตมลพิษได้อย่างน่าทึ่ง

เมื่อมีเอกสารการมีอยู่ของ Kawasaki Ninja 1000 2020 คันนี้แล้ว คำถามต่อมาคือ แล้วเราจะได้เห็นการเปิดตัวตอนไหน ตามที่เราบอกไปตอนแรกว่าค่ายยักษ์เขียวมีคิวเปิดตัวรถจักรยานยนต์ 2 งาน ได้แก่ งาน Tokyo Motor Show และงาน EICMA Show ติดตามกันว่ารถรุ่นนี้จะเปิดตัวงานไหน
Source Cr.: Rideapart, CARB
อ่านข่าว New Bikes เพิ่มที่นี่
อ่านข่าว Kawasaki เพิ่มที่นี่
เรื่องราว ข่าวสองล้อที่สาวกไบค์เกอร์ต้องรู้ที่
Website : motowish.com
Facebook : facebook.com/motowish
